Aging In Place
Avoid Nursing Homes Stretch Retirement Dollars


assisted-img3.png

Choices for seniors


ADUs, Accessory Dwelling Units


adu-front-elevation.jpg

ADU front elevation


adu-side-elevation.jpg

ADU side elevation


adu-interior-1.jpg

ADU interior


adu-interior-2.JPG

ADU interior perspective


adu-pool-site.jpg

ADU side elevation


adu-pool-elevation.jpg

ADU side elevation


adu-floor-plan.jpg

ADU floor plan


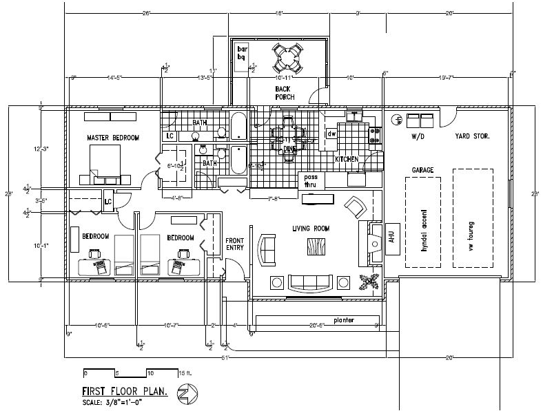
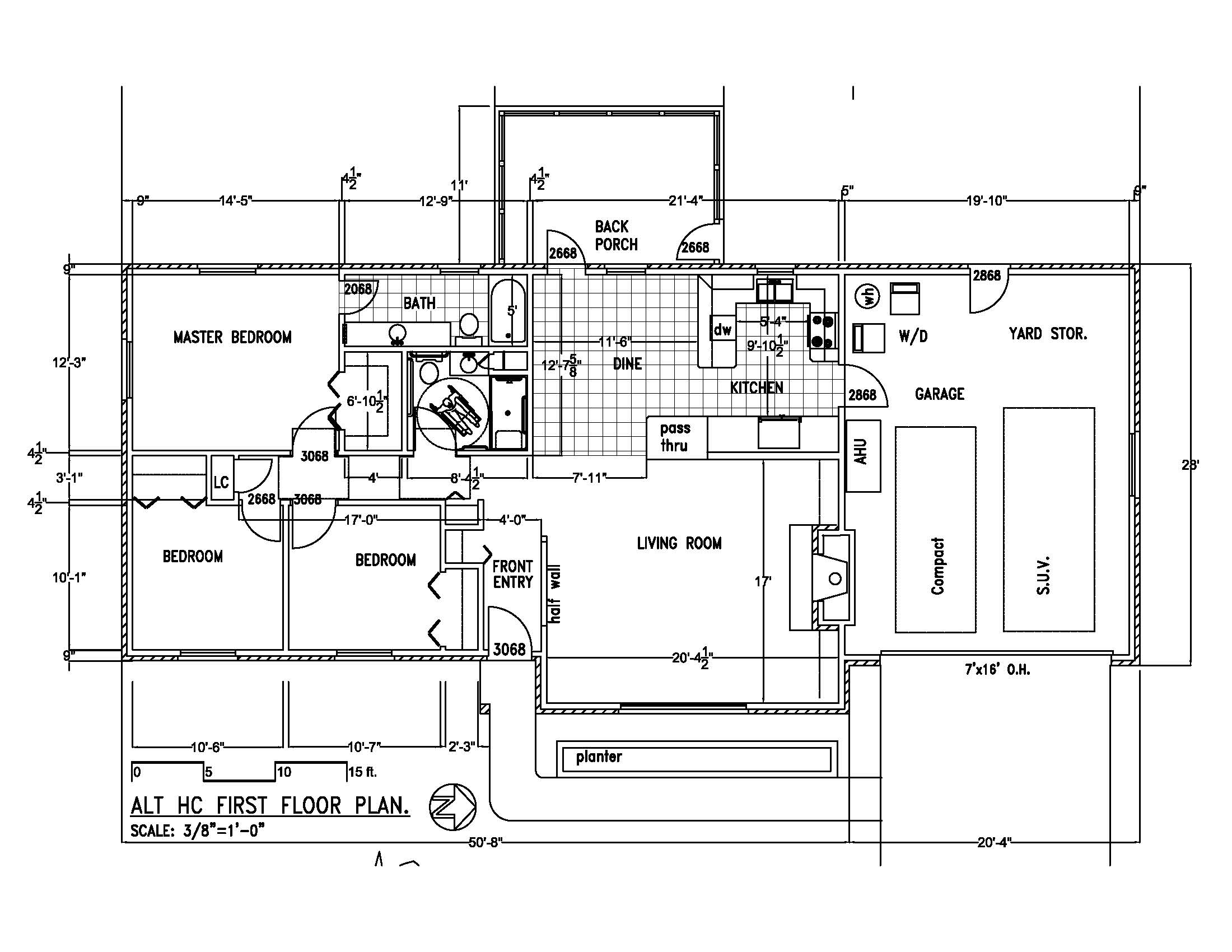
Retro Fit For Disabled


adu-pool-elevation.jpg

Before Remodel


adu-handicap.png

After remodel handicap bath and ramps


Small Co-Op Time Shares For Seniors Without Families


homes-for-seniors-wo-fam.JPG

Homes for seniors without families


homes-for-seniors.JPG

homes for seniors


homes-sr-floor.JPG

homes for seniors floor plan